The old Buckfastleigh Methodist Church
The building
History and heritage

Our vision has always been for a welcoming and accessible building in the heart of Buckfastleigh, a place for a shared culture which nurtures community, champions creativity, and inspires imagination.
We picked up the keys to the old Buckfastleigh Methodist Church building in February 2024, and have been working hard since then to transform it into a welcoming and vibrant community hub thanks to the support of National Lottery Heritage Fund and our awesome team of volunteers.
Now there is a community café offering hot and cold drinks and healthful, ethical and fairly priced food, and as a space available to hire. The main hall has been reimagined and converted into a community performance space, also available to hire for a wide range of workshops, classes and events. Downstairs, we have transformed the damp lower ground floor into an exciting new space for a wide range of community uses.


The architectural heritage of Buckfastleigh Methodist Church is of vital importance as a visually striking building in the heart of our town. Its community heritage is hugely important, too, and something which we are determined to preserve and enhance for current residents and future generations.
The images in the gallery below capture what the building looked like when we first visited. It’s changed a lot since then!
Buckfastleigh Methodist Church building was built in 1835, funded by mill owners for the benefit of the local community.
Over the years, the varied spaces this building provided were of huge value to the community, not only as a place of worship but for many other uses: playgroups, children’s clubs, home education meets, coffee mornings, jumble sales, keep fit clubs, teas for the elderly and isolated, and music events to name just a few.
A 2012 'Conservation Area Character Appraisal' described it as “a key community building...always more than just a church, more of a community centre”.

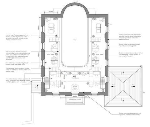
The images in the gallery below are some of the architectural plans and artist drawings of the building, which helped as a basis for conversations with the community to gather ideas and inspiration.



































